1/8
Nuppu
- Year:
- 07/2021
- Location:
- Bratislava, SK
- Authors:
- Oliver Hacaj, Marek Malček
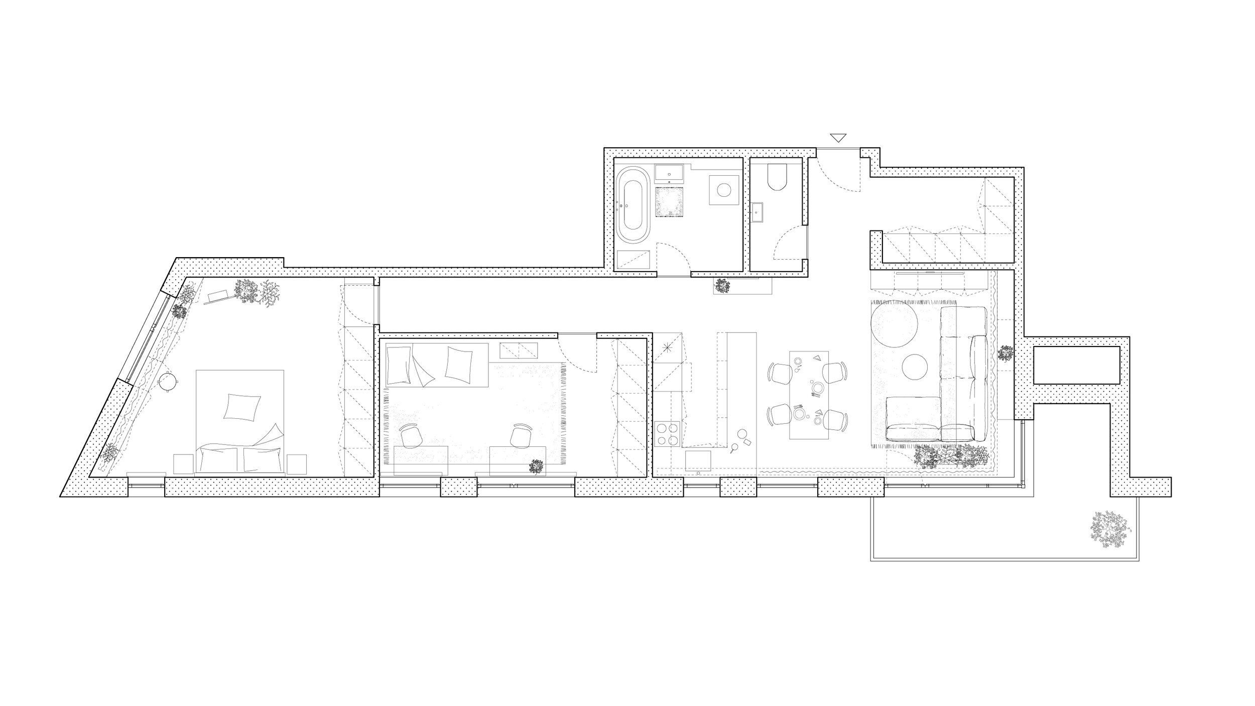
Kamošom, mladému páru sme dokončili štúdiu interiéru v bytovom komplexe Nuppu.
Napriek tomu, že sme nemohli dispozične velmi zasahovať, vznikol v dennej časti komfortný priestor na oddych, varenie a spoločné stretávanie sa s kamošmi a rodinou.
Jednoduchá kombinácia metalických materiálov, drobných kamenných prvkov a neutrálnej farebnosti necháva v budúcnosti priestor na osobité dotvorenie interiéru majitelmi.
Nočná časť je doplnená len praktickým vstavaným nábytkom a veľkým zrkadlom na IG posty.